Temporary Works
When we were approached by the team working on a Grade II listed pub, the project already had a structural engineer overseeing the permanent works design.
But there was one problem; no one wanted to take on the temporary works.
For a building with such significant heritage value and real constraints on what could and couldn’t be touched, temporary works weren’t just a technical requirement. They were a risk-management exercise, a heritage-sensitive responsibility, and a structural puzzle all in one.
And that’s exactly the type of challenge we love.
The Challenge: Support the Structure Without Damaging It
Because the building was listed, the contractor needed temporary support that:
- avoided damage to the historic fabric
- minimised the physical impact on the structure
- adapted to tight space and access constraints
- kept the workforce safe during all phases of construction
The existing structural engineer had already designed the permanent works but didn’t want to take responsibility for the more complex temporary works design.
That’s where our team stepped in.
Our First Step: Review, Assess, and Re-Think
Before putting pencil to paper, we:
- reviewed the permanent works design from the existing engineer
- carried out our own structural assessment and load calculations
- considered how the temporary works would interact with the permanent solution
- identified potential risks that could affect heritage elements
Temporary works shouldn’t ever be a bolt-on. They need to work with the permanent design, not against it.
Phase 1: Temporary works design
Next: On-Site Discussions and Phasing Plan
Temporary works only succeed when the design reflects the reality of what’s happening on site. So we met the contractor on site to walk through the job, identify constraints, and talk sequencing.
Together, we developed a clear, safe approach to support the structure across four distinct phases, ensuring each stage:
- maintained stability
- protected historic features
- allowed safe access
- avoided unnecessary disruption
- aligned perfectly with the contractor’s construction schedule
By thinking through the entire sequence, we allowed the contractor to progress confidently without stop–start complications.
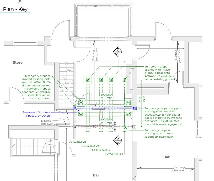
Phase 2: Temporary works design
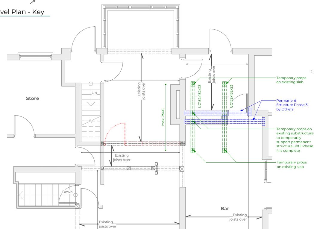
Phase 3: Temporary works design
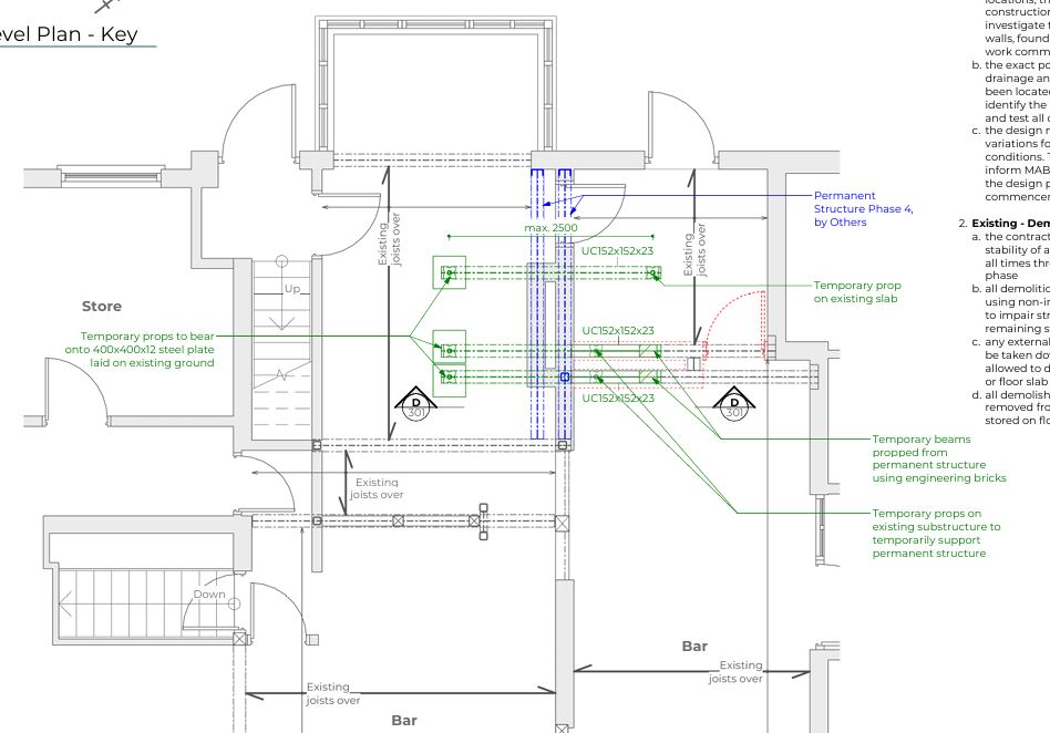
Phase 4: Temporary works design
A Successful Outcome and a Chance to Celebrate
The project was a complete success.
The temporary works performed exactly as intended, supporting the structure, protecting the heritage fabric, and enabling the permanent works to be delivered safely and smoothly.
Last week, we were delighted to attend the pub’s reopening with Clare Truman, the heritage Architect who supported the project so thoughtfully from beginning to end.
Seeing the building sensitively restored, bustling with life again, and knowing we helped protect that history felt like a proud moment for the entire team.
Why Contractors Come to Us for Temporary Works
Permanent works engineers often don’t want the additional liability of temporary works design and we understand why.
Temporary works require:
- rapid decision-making
- deep understanding of construction sequencing
- problem-solving in imperfect site conditions
- flexible, adaptive design thinking
That’s where we specialise.
For contractors, this means they get designs that are not only structurally sound but also buildable, safe, and aligned with how the site actually works.
Get In Touch
If you’re planning a project where temporary works will play a critical role, we’d be happy to help. Get in touch to discuss your requirements. Call us on 0118 962 9666


